Compact Leisure Annexe In Wimbledon, London
Seamless Indoor-Outdoor Living
The annexe is connected to a welcoming outdoor decking area, complete with a table and chairs, ideal for enjoying morning coffee, reading, or simply soaking up the garden views.
A set of Crittall-style doors opens the interior fully to the decking, creating a bright, airy, and inviting atmosphere that encourages time spent both inside and outside the annexe.
Warm and Cosy Interiors
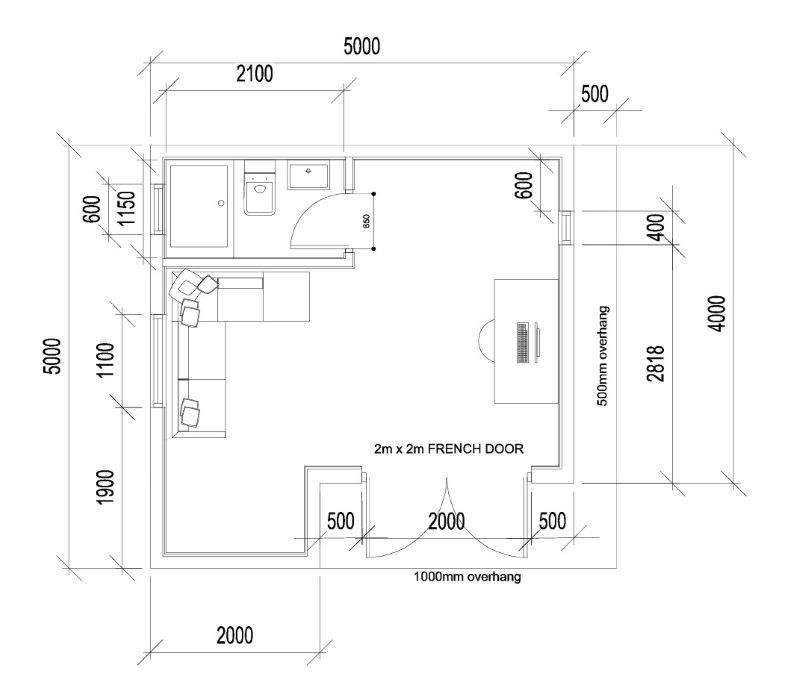
Inside, the annexe is designed to be both stylish and functional. A dark wood theme runs through the space, with the bed, wardrobes, and desk all crafted in rich tones, creating a sense of warmth and comfort. Above the bed, a narrow horizontal window allows natural light to filter in without compromising privacy.
Functional Workspace and Entertainment
The integrated desk area includes a TV mounted above, making the space multifunctional for work, study, or entertainment. A narrow portrait window positioned between the desk and cupboard ensures the room remains light and welcoming, balancing the darker tones of the wood furniture.
Stylish and Practical Shower Room
The annexe includes a modern shower room designed for both convenience and style. Black and grey tiles provide a sophisticated backdrop, while a wooden cupboard with a sink continues the warm, natural tones of the main space. Matching tiles above the sink complete the contemporary aesthetic, combining form and function seamlessly.
A Thoughtful Compact Design
Every detail of this Wimbledon Park Road annexe has been carefully considered to maximise the 22sqm footprint. From the cosy bed area and functional desk to the cleverly integrated storage solutions and stylish shower room, the space balances comfort, practicality, and style. The combination of indoor and outdoor areas further enhances the sense of space, creating a compact yet highly versatile leisure retreat.
A Complete Garden Retreat
This project highlights Hawksbeck Annexes’ expertise in delivering bespoke garden spaces that cater to modern living needs.
The Wimbledon Park Road annexe demonstrates how a small footprint can be transformed into a beautifully finished, functional, and inviting space, perfect for relaxation, work, or entertaining family and friends.
Get In Touch
Are you looking to create a one-bedroom annexe? Get in touch with us on 01277 414586 or at info@hawksbeckannexes.co.uk to enquire about your own luxury garden annexe project.
Hawksbeck Annexes
Kings House
101-135 Kings Road
Brentwood
Essex
CM14 4DR
