Contemporary Garden Retreat with Open-Plan Living – Sevenoaks, Kent
Hawksbeck Annexes has designed a beautiful 36sqm leisure annexe at Stone House Farm in Sevenoaks, Kent.
Finished with cedar cladding and a practical 500mm overhang, this contemporary annexe combines style, comfort, and functionality to create a versatile space for relaxation, entertaining, and everyday use.
Bright and Inviting Interiors
The interior of the annexe is designed to feel welcoming and cosy while maintaining a modern aesthetic.
Large bifold doors open fully to the garden, flooding the space with natural light and creating a seamless connection between indoors and outdoors.
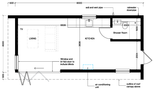
In front of the doors, a green sofa and a white armchair provide a comfortable seating area, complete with cushions and blankets to enhance the homely, relaxed vibe. A TV is thoughtfully positioned in the corner, allowing residents and guests to enjoy entertainment while maintaining views of the garden.
Stylish Kitchen and Functional Living Area
The kitchen features a dark navy blue colour scheme, complemented by floating shelves above the cabinets. These shelves have been styled with fairy lights, books, plants, and decorative items such as a Himalayan salt lamp, bringing personality and warmth to the space.
A window above the sink provides natural light while overlooking the garden, adding to the bright and airy feel.
Adjacent to the kitchen, a large picture window sits in front of the desk, while a French door to the side provides additional light and access to the outdoors. On the opposite side, a large wooden cupboard offers practical storage, ensuring the open-plan living space remains tidy and organised. A red patterned vintage rug in the seating area adds colour, texture, and a sense of character to the room.
Calm and Contemporary Shower Room
The annexe includes a modern shower room, designed with a calming grey colour palette. One wall of the shower features bold black and white patterned tiles, creating a contemporary contrast and a stylish focal point. Thoughtfully planned storage and design details make the space functional without compromising on style, offering convenience for everyday use.
Seamless Indoor-Outdoor Living
A key feature of this annexe is the smooth flow from interior to exterior. The bifold doors, French door, and large picture window work together to maximise natural light and create a strong connection with the garden. This setup allows residents to enjoy a sense of space, fresh air, and tranquillity while remaining comfortably indoors.
A Thoughtful and Versatile Garden Retreat
The Stone House Farm leisure annexe demonstrates Hawksbeck Annexes’ ability to deliver bespoke garden spaces that balance style, comfort, and practicality. From the cosy seating area and stylish kitchen to the contemporary shower room and clever storage solutions, every detail has been considered to create a warm, inviting, and functional space.
Whether used for relaxing, entertaining, or simply enjoying the surrounding garden, this 36sqm annexe offers a high-quality lifestyle solution for the homeowners.
Get In Touch
Hawksbeck Annexes
Kings House
101-135 Kings Road
Brentwood
Essex
CM14 4DR
