L-Shaped Garden Annexe with Office Space - Beckenham
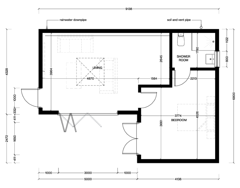
The 50sqm annexe and 12sqm office are thoughtfully designed to provide versatile living, working, and entertaining areas while integrating seamlessly with the surrounding garden. Finished in a combination of cedar and Hardie Board cladding with a 500mm overhang, the project blends contemporary style with practical durability.
Bright and Inviting Office Space
The small office, occupying 12sqm, is designed to inspire productivity while remaining comfortable and stylish.
French doors and a large window flood the space with natural light, highlighting the herringbone flooring and making the room feel open and airy.
A dark navy built-in bookshelf, complete with cupboards below for storage, stretches across two walls, providing both style and functionality.
A wooden desk is perfectly positioned to make the most of the garden view, and a blue armchair in the corner creates a relaxing spot to read or take a break.
Personal touches, including framed photographs on the walls, add warmth and character to the space.
Seamless Indoor-Outdoor Living in the Annexe
The 50sqm L-shaped annexe serves as the main living area, designed for modern comfort and entertaining. Bifold doors and a large French door open onto a spacious decking area with outdoor seating, creating a seamless connection to the garden.
Stone steps lead directly through the landscaped garden to the annexe, ensuring accessibility and flow throughout the outdoor spaces.
Stylish Kitchen and Living Area
Inside, the annexe continues the modern aesthetic with herringbone flooring and a light-filled layout thanks to a large skylight over the lounge and dining area.
A crisp white kitchen with a marble splashback combines elegance with practicality, while wooden cupboards provide warm, natural contrast.
The living area features a red patterned armchair and a large media wall inspired by the office’s dark navy built-in shelving.
The TV is perfectly integrated into the unit, keeping the space stylish and organised. Large artworks on the walls add personality and create a cohesive, contemporary interior.
Functional Layout and Thoughtful Design
The annexe is designed to maximise the 50sqm footprint while offering separate zones for cooking, dining, relaxing, and entertaining.
The L-shaped layout ensures distinct areas flow seamlessly, while the integration of skylights, bifold doors, and French doors maximises light and enhances the sense of space.
A Complete Home and Workspace Solution
This Beckenham project highlights Hawksbeck Annexes’ ability to create bespoke, high-quality annexes and workspaces that suit modern family life.
By combining the annexe with a separate small office, the design supports both professional and personal needs while ensuring comfort, style, and connectivity to the garden.
Every detail from built-in storage and herringbone floors to outdoor entertaining areas has been carefully considered, delivering a versatile and beautifully finished space that elevates day-to-day living.
Get In Touch
Hawksbeck Annexes
Kings House
101-135 Kings Road
Brentwood
Essex
CM14 4DR
