Luxury Garden Annexe - Brentwood, Essex
The goal for this annexe was to build a self-contained unit that offered independence while remaining closely connected to the main home.
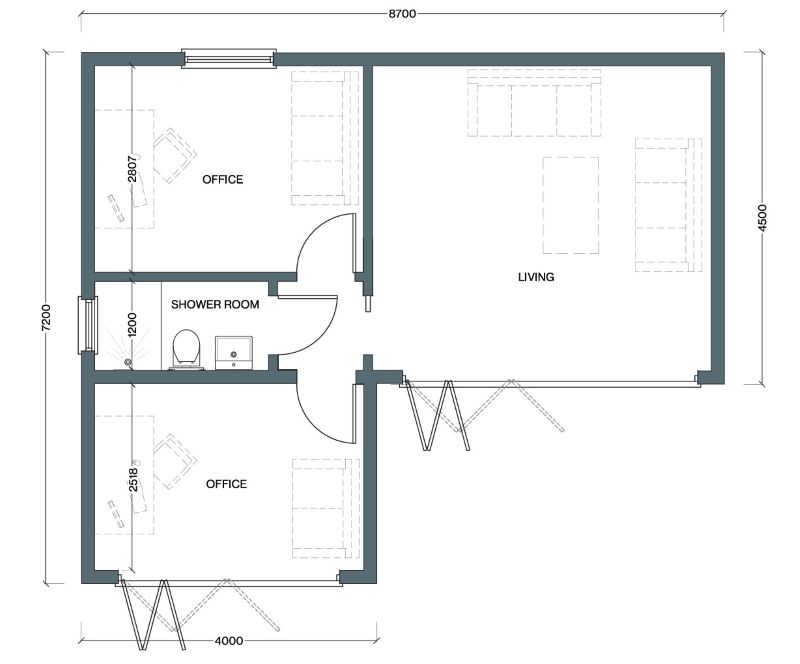
Design and Layout
The annexe was built in an L-shape, making the most of an unused corner in the garden.
This layout not only makes the structure feel naturally integrated into the outdoor space but also allows for a compact patio area without intruding on the rest of the garden.
This efficient use of space is one of the great advantages of our L-shaped designs, as it enables a seamless flow between indoor and outdoor areas while maintaining a sense of openness.
The sheltered inner corner also provides a private, wind-protected area for outdoor seating or dining.
Over time, the cedar will age gracefully, adding character and charm to the building’s appearance.
The natural materials not only enhance the visual appeal but also contribute to the sustainability of the build, making it an environmentally conscious choice.
Living and Kitchen Space
The heart of the annexe is a light and open-plan kitchen lounge area. The fully fitted kitchen includes a breakfast bar, ideal for both everyday use and entertaining guests.
The large bifold doors fill one wall, flooding the room with natural light and providing seamless access to the outdoor patio, creating a perfect connection between indoor and outdoor living.
Bedrooms and Flexibility
This is a two bedroom garden annexe, one of which is a master bedroom with a large window that looks out onto surrounding trees and bushes.
The window is carefully positioned to allow natural light while maintaining privacy, offering peaceful views.
The second bedroom is currently set up as a minimalist office space but is versatile enough to be used as storage or a secondary living area, depending on future needs.
Stylish Bathroom Features
The bathroom in this annexe was designed to combine practicality with subtle luxury.
It includes both a walk-in shower and a separate bath, providing options for relaxation or convenience.
A high-set window offers both ventilation and privacy. A standout feature in the bathroom is the marble sink unit, which adds an elegant touch to the space, enhanced by black fittings and detailing that lend a modern contrast.
Get In Touch
For A Free Garden Annexe Site Survey Call Us On 01277 414586
Hawksbeck Annexes
Kings House
101-135 Kings Road
Brentwood
Essex
CM14 4DR
